Отличное предложение в самом центре города!
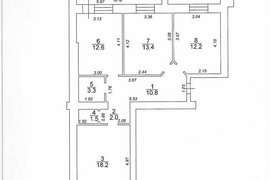
К продаже представлена просторная 3-комнатная квартира классической планировки, общей площадью 74 кв.м. + лоджия.
Квартира расположена на 5-м комфортном этаже 10-этажного кирпичного дома 2009 года постройки.
Функциональная планировка: три изолированные комнаты на две стороны, что обеспечивает хорошую инсоляцию и комфортное зонирование пространства. Просторная кухня площадью 13 кв.м станет отличным местом для семейных завтраков и уютных ужинов.
Санузел раздельный, есть лоджия, окна выходят и во двор, и на улицу. Выполнен качественный косметический ремонт в современном стиле, который позволит без дополнительных вложений заехать и жить, а также легко вписать нужную мебель под ваши задачи.
Дом кирпичный, теплый, с пассажирским и грузовым лифтами. Ухоженная придомовая территория, создано свое ТСЖ, которое оперативно решает текущие вопросы. Адекватные коммунальные платежи, установлены счетчики на свет, воду, газ и отопление.
Район с прекрасно развитой инфраструктурой: в шаговой доступности школы, детские сады, магазины, остановки общественного транспорта и все необходимое для комфортной жизни. Дом расположен в самом центре города, что делает квартиру особенно привлекательной как для проживания, так и для инвестиций.
Дружелюбные, спокойные соседи, чистый подъезд. Квартира юридически чиста, подходит под все виды расчетов. Взрослый собственник, быстрый выход на сделку.
Приходите на просмотр, чтобы лично оценить все преимущества этой квартиры. Показ организуем оперативно в удобное для вас время.



